【人気のスクエアな外観の住まい】ミドル~シニアライフを見据えた理想の家に住みたい!

せっかくのマイホームづくりなのに、「住人はきっと高齢者だね~」なんて完成物件なんてイヤ!
そんな普通の家なら、私にとっては大枚をはたく意味はありません。
だって、最後の住処づくりではなく、ときめく楽しいシニアライフを過ごすための建て替え、住み替えなんですから!外出先から帰宅したとき、出かけるとき、目に焼き付けたい家に住みたいです。
いまどき(?)のアラ還夫婦がどんな家に住みたいのかを本気で考えた「ミドル~シニア向け 間取り考察」8回目です!
施主様との間取りの提案のヒントになれば、幸甚です。
今回は、外観デザイン30パターンの中から人気投票で選ばれたTOP3デザインを収録した間取り集『外観デザインセレクション(2階建て)』から選びました!
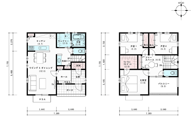
選んだプラン(間取り)は、「NO.19 FD-2C-S099」です。
まずは、このシャープな外観!木目調サイディングが際立つカーボンブラックな外観に心奪われました!やっぱりキュービックなフォルムが好きみたい…です。


このプランを選んだ、主なポイントは、以下の3つです!
(1)2階の広めのバルコニー!
この外観シリーズには、全てバルコニーが付いているのが魅力のひとつ。
お気に入りのバルコニーチェアをコーディネートします! ほっと一息つきたいとき、考えごとをしたいとき、季節を感じたいとき、夜空を眺めたいとき…、お気に入りの場所になること、請け合いです。
(2)水廻りスペースがまとまっているので家事動線が短い!
キッチン、脱衣室、浴室がまとまったゾーニングだから、家事動線が短いのが何よりです。
掃除も効率よくできそう。そして、自分としては、ここは家事ゾーン。ひと仕事終わったら、フリータイムは2階のバルコニーか自室に移動!居場所を切り替えることで、気持ちの切り替えもうまくいきそう!
(3)主寝室とは別に夫婦それぞれの部屋がうれしい!
現役時代とは違って、家にいる時間も増えてきます。
だからこそ、それぞれが自分の時間と空間の確保できることが夫婦長続きのコツ!
互いに好きなことをする時間を持てることで心のゆとりをもつことができるはず。将来、どちらかに介護が必要になった際も生活音で相手を起こさないように…とピリピリするストレスも軽減にもつながります。
▼記事でご紹介しました【外観デザインセレクション】は、間取り集としてご紹介中!
サンプル版を公開しておりますので、よろしければご覧ください!
- 2級ファイナンシャル・プランニング技能士
AFP(日本FP協会認定)平林 美幸(ひらばやし みゆき) 福岡県生まれ・東京都在住。
全国の工務店・ビルダーが“設計課題の解決”を目指すコミュニティ『遊ベーシックデザインの会』の広報・ライター業務を担当。仕事とプライベートを両立させる自身の経験を活かし、お客様目線での間取り解説や住まいに関する記事が好評を得ている。




