【 総2階の憧れの家 】ミドル~シニアライフを見据えた理想の家に住みたい!

建築資材費や人件費の高騰やら、昨今の状況下で家づくりを考える際、夢や理想を全て採り入れるって、さすがに…ハードル高い?
とはいえ、せっかくのマイホームづくり、特にセカンドライフを見据えたアラ還暦世代こそ、あきらめるわけにはいかない!
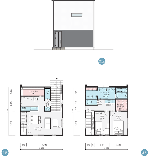
モダンデザインの新・間取り集『総2階の憧れの家』は、コンパクトな敷地にも提案できるというのがウリ!コストを抑えながら、居心地の良さと広がりを感じる17帖~最大20帖のLDKプランの中から、今回、選んだのは、「No.21 CSO-N089」です!

このプランを選んだ、主なポイントは、以下の3つです!
(1)3帖のパントリー
買い物は週末に1週間分をまとめて買い込む!というルーティン(?)は現役世代から続いていますが、自然災害やコロナ禍の経験を経て、防災意識の高まりやローリングストックの実戦も身に付き、ましてや加齢と共にネットスーパーなど、宅配で買い込むことも増えてきたため、備蓄スペースの確保が最大の課題でした。だからこそ、3帖のパントリーは貴重です!
(2)1階のパブリックエリアと2階のプライベートエリアが分かれている
広々としたLDKは人が来ても来なくても居心地良さそう!そして、2階の部屋は各自の個室とします!シニア夫婦の暮らしはプライベート時空の確保はマストです! 黒川 伊保子 著の『60歳のトリセツ(扶桑社新書)』にも、「理想は互いの気配は感じられるが(生活音は聞こえるが)、目に入らない個々の空間を確保すること」との記述がありました。この一文、膝を打ちました!この理想がこの家であれば、実現できます!
(3)ランドリー収納
「洗う」から「干す」「畳む」までの洗濯家事を移動することなく、スムーズな作業ができる充実の空間は何より、何より! このコラムでも何度かお伝えしていますが、若い方にとっては、“タイパ”問題解決になりますが、シニア世代にとっては、体力温存のための“省エネ”につながるんです! ここが大事なんです。
新・間取り集『総2階の憧れの家』は、「かっこいいデザイン」と「快適な暮らし」を実現できる、まさに『憧れ』を叶えるマイホームとして、一歩先の住まい方までイメージングできるはずです!
▼記事でご紹介しました【総2階の憧れの家】は、間取り集としてご紹介中!
サンプル版を公開しておりますので、よろしければご覧ください!
- 2級ファイナンシャル・プランニング技能士
AFP(日本FP協会認定)平林 美幸(ひらばやし みゆき) 福岡県生まれ・東京都在住。
全国の工務店・ビルダーが“設計課題の解決”を目指すコミュニティ『遊ベーシックデザインの会』の広報・ライター業務を担当。仕事とプライベートを両立させる自身の経験を活かし、お客様目線での間取り解説や住まいに関する記事が好評を得ている。




